DesignRe-explore设计再探索「www.indesignadd.com 」
— — 全球创意生态的灵感引擎
隶属于英国伦敦DESIGNREEXPLORE传媒集团,创立于2021年,凭借独特的全球创意资源网络,
为设计师、地产家居专业人士及文化创意从业者提供每日前沿的行业洞察与灵感库藏。
平台通过整合千家国际合作伙伴资源,构建了横跨设计全产业链的权威内容矩阵。
核心品牌:
▸ HEPER创意黑皮书「www.heperdesign.com 」:全球创意灵感库,发掘前沿设计趋势与跨学科创新实践。
▸ iawards邸赛设计竞赛中心「www.indesignadd.com/Match/List」:推动行业未来的国际竞赛平台,聚焦设计新锐力量。
以"再探索"为基因,持续赋能设计生态的对话、碰撞与进化。

indesignaddcom@foxmail.com
https://weibo.com/u/2530221873
合作联系:136 6001 3049 / 奖项申报:159 8919 3049
DesignStrategy 设计创作策略
意大利高端艺术涂料品牌Novacolor于1982年成立,受益于其极具直觉和创造力的管理及精心选材,迅速发展, 为世界各地的建筑师和设计师提供内外墙全系列的质感效果, 石灰基以及用于现代城镇或历史古镇的艺术涂料。Novacolor品牌体验店惠州首店的室内建筑设计工作,委托于惠州极具创造力与高品质出品的LICO力高设计。

创新力、高品质、对话是LICO力高设计的灵魂,基于Novacolor品牌客群以建筑师与设计师为主体,Novacolor对创新型、直觉、可行性、品质的品牌追求,以及LICO主张的50%DESIGN的设计理念等多维度考量下,“探索与对话”成为Novacolor品牌体验店室内建筑设计工作的核心理念,LICO将空间主题命名为“Between Worlds”,意为两个世界之间的互相探索与对话:涂料与建筑、直线与曲线、宇宙与人类、内与外、虚与实、个体与整体、品牌与顾客… …设计语言、元素及表达围绕Novacolor产品特性“自然肌理色彩”而展开。
Novacolor Store·Huizhou,LICO设计团队将Novacolor的产品与特性最大程度的直接运用到建筑外观、室内建筑以及空间装置上,希望区别于传统的产品展示方式,通过产品的直接运用,让访客和顾客可以直接与品牌对话。Novacolor品牌理念和产品特性借由建筑空间直接传递,以释放访客和顾客的自主性与选择权,访客与顾客自主自然地完成探索、感知、对话、认同、选择的过程。

建筑左视图 – 世界之窗

建筑正视图 – 世界之间

建筑正视图 – 世界之间

入口装置 – 陨石之门

入口装置 – 陨石之门

楼梯装置 – 韵律之月
楼梯装置 – 韵律之月

楼梯装置 – 韵律之月

前厅区域
楼梯装置 – 韵律之月

入口装置 – 陨石之门

入口装置 – 陨石之门

入口装置 – 陨石之门

入口装置 – 陨石之门

入口装置 – 陨石之门

楼梯装置 – 韵律之月

入口装置 – 陨石之门

入口装置 – 陨石之门

一层洽谈区域

一层洽谈区域

一层洽谈区域

空间对话

对话

对话

二层洽谈区域

二层洽谈区域
二层洽谈区域

二层洽谈区域

二层洽谈区域

空间局部 – 探索

空间局部 – 探索

空间局部 – 探索

空间局部 – 探索

楼梯装置 – 韵律之月

楼梯装置 – 韵律之月

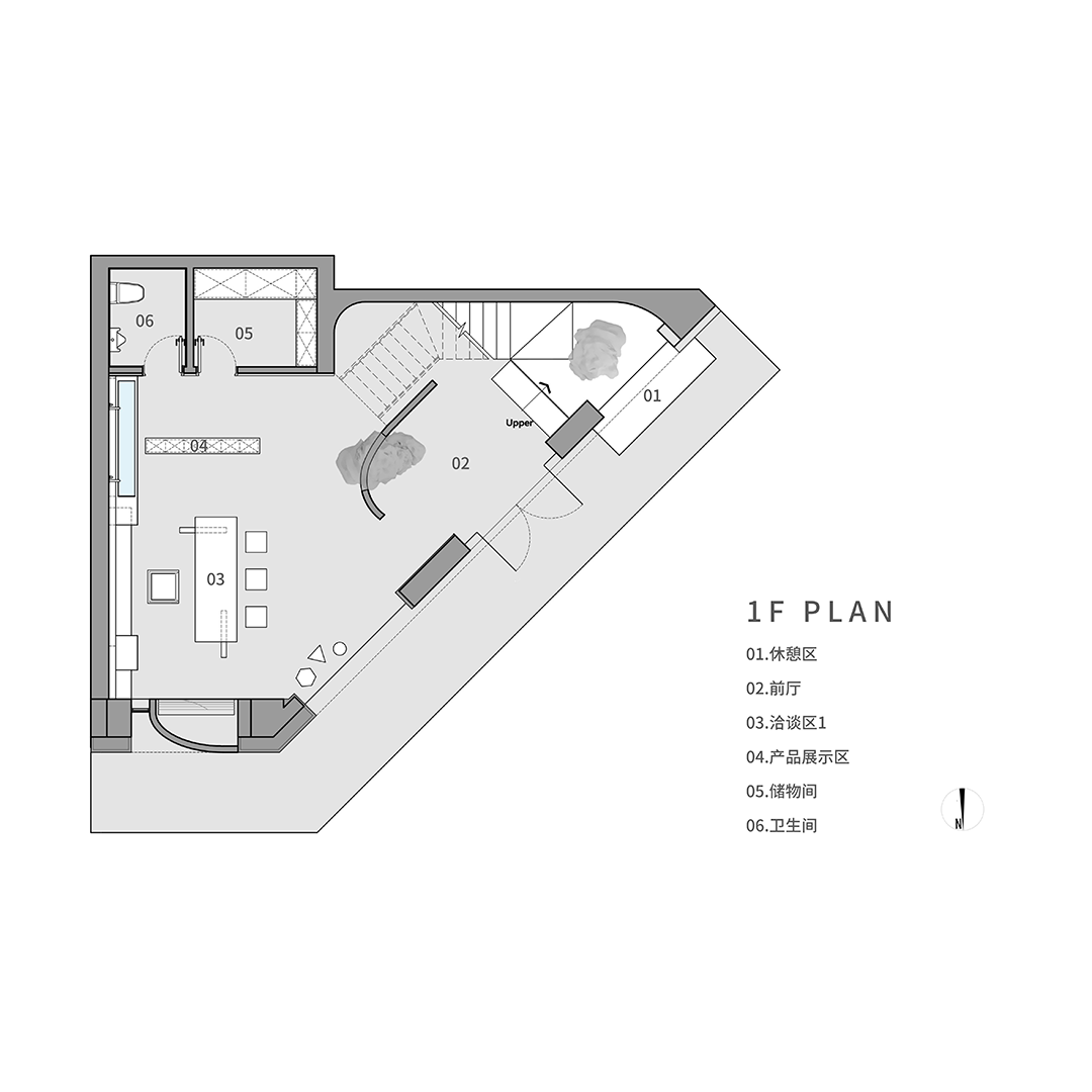
空间规划与结构图

空间规划与结构图
空间规划与结构图
设计服务现场
空间效果图
© LICO 空间效果图
空间效果图
Project Information 项目信息
项目名称 I 诺瓦品牌体验店惠州首店
设 计 方 I LICO力高设计
公司网站 I licogd.cn
联系邮箱 I licogd@163.com
完成年份 I 2020.12
主创设计 I 钟良胜
设计团队 I 朱洋环、林峰、董华斌、骆秋月
技术总监 I 冼景华
施工执行 I 何昌辉
项目地址 I 惠州市惠城区演达二路
建筑面积 I 130平方米
摄影版权 I 隐象建筑摄影| 欧阳云
客户名称 I 坤亚欧洲建材
品 牌 I 诺瓦

LICO,在斯洛文尼亚语中表“面对”之意,契合力高品牌高度奉行“行与创”的经营理念与设计哲学。力,表能力、效能、尽力去做,谓之行;高,表观念、维度、要创新高,谓之创。力创高品,理想生活。LICO认为,创新性、美学性、精神性的设计方案仅是“设计”工作系统的50%,设计执行的还原度、能效性、引导性则是“设计”工作系统的另外50%。十数年来,LICO力高团队,持守“理想生活创行者”的角色定位,始终以“客户体验与评价”作为设计工作的起点与终点,坚持以“50%DESIGN”的设计哲学,专注于理想生活的空间机能构筑、美学感知传递以及生活方式创建,为客户提供“理想生活全案”,力图帮助当代品质生活需求客户实现“理想生活”的美好愿景。

钟 良胜 I 理想生活创行者
LICO力高设计 创始人&设计总监予舍酒店 品牌创始人
50%DESIGN 理论创研者 ACI国际注册高级室内设计师、CIID中国建筑学会室内设计分会注册室内建筑师、中国湛江设计力量(惠州)会长、深圳市室内设计师协会理事、2020-2021 ID CHINA中国室内设计I年度封面人物、2019 DESIGN SHH上海国际设计周I金梁中国设计奖、2018 DESIGN100粤港澳大湾区设计I新锐榜年度人物、2017 JINTANG PRIZE 金堂奖I年度设计作品奖、2016 CBDA设计奖I年度最佳优秀设计师、2017 PENGDING鹏鼎奖I十佳酒店空间设计奖、2019 NicelivingAwards营造家奖I最佳大户型TOP20、2017 IDEA-TOPS国际空间设计大奖I艾特奖入围 ...