DesignRe-explore设计再探索「www.indesignadd.com 」
— — 全球创意生态的灵感引擎
隶属于英国伦敦DESIGNREEXPLORE传媒集团,创立于2021年,凭借独特的全球创意资源网络,
为设计师、地产家居专业人士及文化创意从业者提供每日前沿的行业洞察与灵感库藏。
平台通过整合千家国际合作伙伴资源,构建了横跨设计全产业链的权威内容矩阵。
核心品牌:
▸ HEPER创意黑皮书「www.heperdesign.com 」:全球创意灵感库,发掘前沿设计趋势与跨学科创新实践。
▸ iawards邸赛设计竞赛中心「www.indesignadd.com/Match/List」:推动行业未来的国际竞赛平台,聚焦设计新锐力量。
以"再探索"为基因,持续赋能设计生态的对话、碰撞与进化。

indesignaddcom@foxmail.com
https://weibo.com/u/2530221873
合作联系:136 6001 3049 / 奖项申报:159 8919 3049

第一次工业革命后,为提高工人的生产效率,管理工人,出现了第一个集体办公室。19世纪末20世纪初,泰勒的科学管理理论应运而生。秩序、阶级组织、监督及群众利益,一切以效率为上,闭塞而压抑,这种监视性的阶级办公依然存在。
未来办公环境的一次探究当下的一种革命未来的概念是一种普世的思想而我们的当下是一种充满浪漫的自以为是希望这个瞬间的构想,能够引发互相刺激能够不断引发新的愿景,沉浸于这个危险之中——总设计师谢培河
△项目视频
01
非计划性的秩序
在时间的概念中,如果说我们的现在就是一种幻觉,那么我希望是力量、暧昧、诱惑、调皮、浪漫、潮酷、好玩、未知......在空间的感官上,设计师想在瞬间中创造一个异界,而这个瞬间在人与行为的参与下才变得完美,一种非计划性的完美;而这种非计划性,又是人为的秩序是让空间的性质,因为时间与人的关系在产生变化;这种变化未知的状态也是艾克建筑一直在探究的。






02
不止于办公
熟悉是令人放心的,但是缺乏感动;设计师尝试反叛的规则,渴望获得新的灵魂与梦想,建立感动。有山有海有绿洲有都市有温度,窗外的公园绿洲与内湖、海、远处的山,层层递进,构成了一幅美好的画面,香港与深圳湾尽收眼底。设计师希望在城市的中心能够依赖自然,在画面中与画面之外,人都构成了自然的一部分;共振即是爱,这个爱是我们说的温度。艾克建筑坚持以探究性的态度来实践空间创作过程中人与物、人与人的交互关系。






03
智能多元会客厅
去除传统对坐的会议模式,弱化会议功能的表现形式。设计师将会议与接待区统一在一起,通过智能灯光与音响系统的控制,可以兼顾观影娱乐功能,让空间的使用更高效,放松,弱化空间的商务气息。在这里,人与人不是对立面,而是一个共同体,这是冰冷写字楼里的温度。





会客厅里意外的出现了总设计师的办公桌与阅读桌,办公、会议、接待、休闲没有绝对的分割,体现了团队自由、共享的理念。



夜幕降临,都市开始变得安静,冰冷的写字楼里更是如此,艾克建筑正在否定这样的秩序。黑色的盒子里燃起了一道红色的火光,潜意识中进入了另一个短暂的愿景与维度中;一次充满诱惑,暧昧,虚幻的体验出现在我们的行为感知中,这个过程的情感会因为人与人关系的不一样而产生丰富的感性情绪;可结果都一样,我们都在这个过程获得惊喜减少恐惧。



04
自我与开放
物料展示区常规逻辑是最杂乱,私密的区域。这一切都源于不安,源于想要遮丑的内心。设计师将物料展示用肯定的态度,设置在空间的中心,同时是入口的位置,中心能够带来高效的工作节奏,即合理性。同时展示着这些有关美的表情。表达着设计师对这种不安的挑战。






办公区解放盒子牢笼,打破传统隔间的办公环境,部门之间没有分割,只是通过位置进行限定,能更好的提高沟通的效率与轻松的工作氛围,创造出更加平等与和谐的工作环境。设计师长期久坐且固定姿势,艾克建筑为每一个伙伴配置了挪威原装进口品牌HAG办公椅,这是一把可根据人的姿势调整力学支撑的椅子,每一个伙伴的工作舒适度与健康是艾克建筑财富的一部分,想通过细节强调温度。




接待、物料展示、与办公区用最简洁的方式构成了艾克建筑的办公室,入口处形成了迂回的动线,摒弃大气的前台接待,让办公室整体保持一种更为私密的环境与神秘感。这是一种隐性的美好!
05
黑
暗黑色系的办公室,这是一个具有争议的状态,另设计师惊喜的是,这样的暗黑系,更好的将视觉引到室外的美景,更好的与自然进行互动。简洁的材料体系,黑色洞石的效仿意大利艺术漆,体现了空间的份量感,德国芬尼特地毯的运用,强调了舒适度、吸音及特殊的地面质感,不锈钢与灯光的结合,强化了空间的科技感与场景感。


AD OFFICE的一次尝试,是一次有计划的冲动行为。在解决工作环境的同时,用冒险的态度试图去触碰未来办公产品的可能性与温度的建设。表现其独具先锋性的“极简派艺术”空间设计语言,融贯东西方的认知。




△人心与空间同振共鸣,即是遇见美好
06
复古与时尚
CHS 安藤忠雄设计的TA001T|Dream Chair、Cassina、Driade、HAG;SINGCHAN 陈星宇设计的Fragment落地灯;国际个性品牌家具的运用,复古与时尚的碰撞,阐述的是设计师对设计品质与设计视角的独特性。

△空间构成 Spatial composition
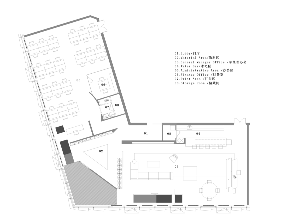
△平面图 Plan
项目名称|艾克建筑办公会所
建筑面积|680㎡
项目地点|中国 深圳南山
设计机构|AD ARCHITECTURE / 艾克建筑设计
总设计师|谢培河
设计团队|AD艾克建筑
设计施工团队|深圳博韬建设有限公司
照明顾问|赫光照明设计(广州)有限公司/石客照明
主要材料|手工漆、地毯、不锈钢、玻璃、亚克力、松木板
设计时间|2021年5月
竣工时间|2021年11月
项目摄影|欧阳云