DesignRe-explore设计再探索「www.indesignadd.com 」
— — 全球创意生态的灵感引擎
隶属于英国伦敦DESIGNREEXPLORE传媒集团,创立于2021年,凭借独特的全球创意资源网络,
为设计师、地产家居专业人士及文化创意从业者提供每日前沿的行业洞察与灵感库藏。
平台通过整合千家国际合作伙伴资源,构建了横跨设计全产业链的权威内容矩阵。
核心品牌:
▸ HEPER创意黑皮书「www.heperdesign.com 」:全球创意灵感库,发掘前沿设计趋势与跨学科创新实践。
▸ iawards邸赛设计竞赛中心「www.indesignadd.com/Match/List」:推动行业未来的国际竞赛平台,聚焦设计新锐力量。
以"再探索"为基因,持续赋能设计生态的对话、碰撞与进化。

indesignaddcom@foxmail.com
https://weibo.com/u/2530221873
合作联系:136 6001 3049 / 奖项申报:159 8919 3049

现象学美学是由胡塞尔奠定的一种美学思潮,用现象学的方法解释美学问题。作为哲学流派的现象学,“回溯到事物本身中去”,通过直接的认识去把握事物的本质。排除在考虑之外,剩下的只是纯粹意识,即意向性本身。在确定了意向性概念后,意向地内在于意识之中的或约存在于意向体验中的对象。

我们终归有一种存在着的美的东西,一种单纯的想象物,一种图像,它恰恰是一个理想的对象,而不是一个实在的对象。
《现象学美学》 作者|胡塞尔
△项目视频
大董是谁
大董,“北京烤鸭”的代名词大董,世界性级别的中国餐饮大董,中国第一个MBA厨师大董,中国意境菜的首创者大董,一件事情做了40年

大董倡导“24节气,不时不食”,并将24节气应用到空间、餐单、茶饮、宴会......「美·大董海参店」21间包房及散台分别寻找24节气对应中国色彩并命名。“昌荣、银褐、皦玉、监德、正青……”,既蕴含东方传统美感,又具备时尚创新。
△二十四节气命名及色彩


△大董二十四节气意境菜
结缘大董大董集团新品牌形象的御用设计师
“美·大董海参店是大董北京烤鸭品牌20年后的一次迭代。开一家‘新’店,将南新仓店彻底击碎,然后涅槃重生。”这是大董先生与总设计师谢培河一次重要的对话捕捉。因此,在设计师的选择上,大董决定放弃所有的“安全”选项。此前合作过的设计师,通通排除,一间极致的餐厅,必然需要一个全新的概念,一位勇敢的设计者。
艾克建筑成为了大董集团旗下所有餐厅的新空间形象设计合作伙伴,其中包括大董、小大董、董涮、千山万海、30°徽。
2021年10月的一场大董秋风宴上,大师傅为设计师谢培河写下一句话“一生的努力只为见到你”,这无疑是大董先生对设计师最大的鼓励与肯定。
一个“老师傅”厨师近乎于40年的坚持与颠覆,我们也为这种精神为之感动。大董先生与艾克建筑对于放弃“安全”的选项与“勇敢”冲撞已有的现实系统,打破甚至颠覆性地进行再创作,这是基因配比中可贵的高度吻合,空间是在传承品牌的透露的意境基因下行进着有把握冒险性的创作。

大董南新仓店继承品牌“意境”基因,传达“东方美学、西方美学、禅宗思想、传统当代、进步科学”品牌文化,定义当代东方艺术用餐体验。基于品牌文化内核的一次深度思考与40年的坚持,设计既要符合当代探索未来的设计罗辑,又要尊重品牌的文化与内核,深挖大董进步、文化、品位、艺术、开放、融合、科学的品牌文化,通过建筑空间与行为感官,用自信的态度来阐述对大董的认知理解与阐述。
△皇家粮仓
场与意念建筑是凝固的艺术,它汇聚了我们对于一个城市的想象。美·大董海参店坐落于北京南新仓,被保利国际大厦、皇家古仓群环抱。北京皇家藏书馆典藏文化、现代商务特征与庄严肃穆的皇家粮仓巧妙融合一体。平静与和谐地勾勒出大董的典藏内涵,并不断提升大董文化潜质。
△ 项目位置
这是一场矛盾,亦是一种和谐,这是西方秩序亦是东方精神,这是一次延续亦是一次颠覆。
——谢培河抽象兼现代时尚的空间,与中国传统文化的经典,仅有一墙之隔。从古今到中外,巨大的张力潜藏其中,奇妙的平衡也由此而生。时空交错的未来感,微妙多维的联系, 建树着的一种独特的东方美学场地精神,而这种俨然是项目固有呈现的答案,用抽象的手法打造一个当代的空间环境,感受空间的层出叠见与自然的气度。

红与情绪
所有具象的表现都要服从于人的内心,简练的线条,浓烈而又热情的红光,这种红也带来烤制锅炉火红景象的一种感知链接,带着冲动,也附加着激进的信号。艾克建筑认为光本身就是一直显性的物质,应该作为空间中看得见的主体来呈现,通过光的物质性来传达人的精神世界,神秘、安静、虚幻而又无声的、热烈的情绪因光而涌现。



光与介质
光,在空间中被充当传达物理现象的一种介质。在设计的思考中,光影渗透在结构的缝隙中,用流动的光影,弧形的廊道空间突破性地改变了人们印象里沉重、呆板的氛围,充满动感和曲线美。



美·大董是用当代的材料与设计手法来演绎的中式餐厅,曲面造型分割空间构成了餐厅的基本形态。曲面的形态打破了我们对中式餐厅的预判,形成独特的空间体验。



地面黑色镜面石材的运用,营造了水的意境,抽象的形体在水的映衬下,让人仿佛置身于千里江山图之中。设计师希望这种意念是人参与的,而非抽取画中的色彩或者具体的元素,更希望营造人于画中。红色的灯光渗透在空间中大面积的黑色意识中,制造除了强烈的空间神秘感,主打环保与可再利用的意大利手工艺术漆,粗糙自然中带着理性。更是强调着大董先生追求环保健康与克制的大董品牌特征。



进入前厅首先映入眼帘的是一片具有引导性的弧形墙体,具有雕塑感的黑色楼梯,成为了空间的视觉中心。楼梯底的结构柱子采用红色发光的亚克力,有效地让楼梯的结构漂浮起来,让楼梯的形式不被破坏。楼梯踏步侧面发光,有效地将楼梯踏步与扶手的结构分离出来,显得更加细腻与精致。楼梯背景陈列着大董先生私藏的各类名酒与古书籍,无处不彰显着大董先生的品位与内涵。








业务台与领位台分别布置在入口的左右两边,红色的发光背景增加了空间的趣味感与诱惑性,给人一种特别的礼遇。从空间上对餐厅的服务进行细微的展现,对服务的重视是大董企业另外一个重要的文化。


通往大厅,红色的酒柜与远处的中央服务水吧成为了大厅的特色,打破了传统中餐厅的用餐体验,多了一份休闲与浪漫主义色彩。


从楼梯进入二层,我们首先看到的是和一层背景弧形墙呼应的造型。二层的通道设置了中央茶吧,这也是在餐厅功能细节的一次升级,相对于每个包房设置茶台,专业与细腻服务的同时有效地降低了人员配置。




白色的亚克力造型透着渐变红色的灯光,摆放着各种地区与类别的茶叶、器具。茶台经过设计,有各种冲茶过程需要的用具、水源、洗杯器、沥水器、蓄水桶等功能完整的体系,以简洁的形式进行呈现,做到形随机能。

黑与神秘
暗黑色系传达着空间的神秘与高级感。餐厅整体以包房形式运营,提升了餐厅的高级感与用餐过程的私密性体验。包房以二十四节气抽象图案制作的发光亚克力进行区分与色彩区分。黑色的影木柔光质感与意大利黑色自然粗糙艺术漆赋予了空间丰富的变化,地面运用黑色镜面石材料和浅灰色木地板,体现整体未来感与温度。




卫生间抛弃了瓷砖或者石头的传统方法,整体以不锈钢来围合空间,结合特殊的灯光色彩,冷暖交替,让空间无时无刻充满惊喜。


包房卫生间增加渐变玻璃与泡沫铝,卫生间各个细节功能同时在设计中通过硬装和软装的细节考量,形成了完整的卫生间体系。

备餐间以一个小厨房的概念进行设计,考虑了热菜、储存、服务、卫生等细节考量,从功能与形式上,为中餐厅设计打造了厨房与备餐间的新标杆。
音乐与空间
空间与音乐是精神世界的一种特性,捕捉出影像,调动空间的平衡与节奏。审美对象的情致与意蕴除了线条与色彩本身,还有在此基础上形成的图像所传达的精神,这就是审美价值。


不用传统美学的演绎法,也不用心理学美学的归纳法,而采用一种特殊的直觉——本质审美直觉。而审美直觉同样也有三个阶段,呈现“审美对象首先呈现于肉体”、再现/想象“想象连接呈现与再现”、情感/反思“不是指现实中的喜怒哀乐,而是艺术中的表情性,含知识形式于其中的情感”。


艾克建筑意在制造一个激进但是又缓慢的过程,让人能够拥有用餐厅过程短暂而又特别的体验,这一切与形式无关,而是一场诗意的过程。

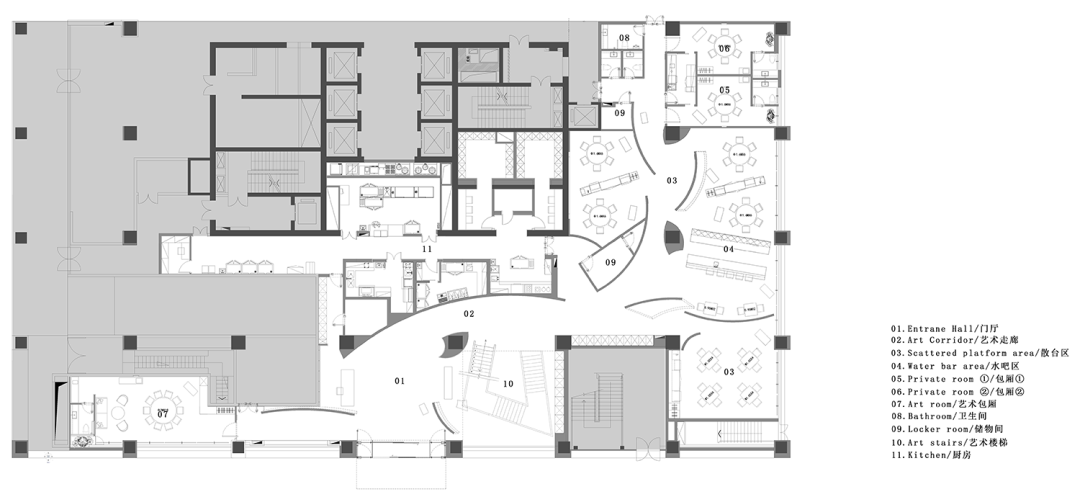
△一层平面图
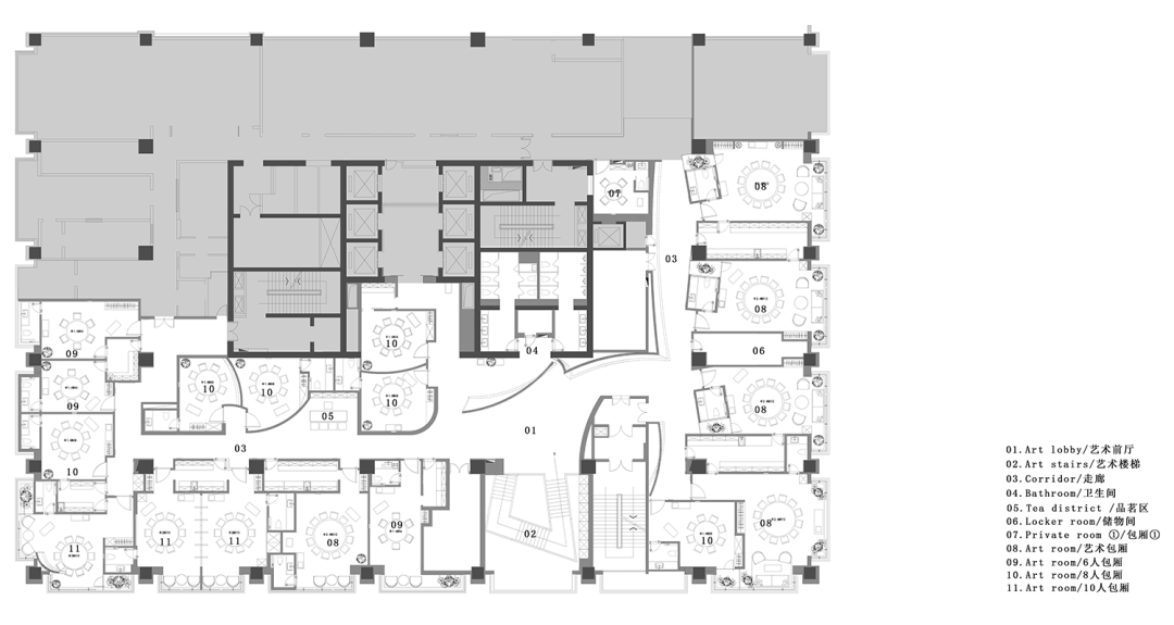
△二层平面图
项目名称|美·大董南新仓店
项目地点|中国 北京
建筑面积|3000㎡
设计机构|AD ARCHITECTURE 艾克建筑设计
总设计师|谢培河
设计团队|艾克建筑
甲方团队|大董、袁玉芳、汤明姬、四希、大董南新仓团队
施工团队|北京华开建筑装饰工程有限公司
智能系统|moorgen 摩根智能
家具团队|雅丽木业
固装团队|北京合众友业酒店用品有限公司
厨房团队|金燃商厨
主要材料|手工漆、黑金砂、木饰面、木地板、不锈钢
设计时间|2021.5
竣工时间|2021.11
项目摄影|欧阳云
人心与空间同振共鸣,即是遇见美好
AD艾克建筑设计(深圳)致力于建筑及室内空间独特视角的设计与研究,为每个项目打造卓异的视觉艺术。团队拥有突破自我界限的决心、国际化的设计视野和系统化的项目管理策略,坚持以探究性的态度来实践空间创作过程中人与物、人与人的交互关系。AD艾克作品已在全球范围内获得广泛认可,近两年囊括英国Andrew Martin国际室内设计大奖,英国餐厅&酒吧设计大奖,缪斯设计奖,美国建筑大师奖,英国《世界室内新闻》杂志大奖,德国国家设计奖,红点奖,ICONIC AWARDS Best of Best至尊奖;美国IIDA全球卓越设计大奖,Interior Design杂志Best of Year Awards大奖;英国FX Awards,WIN Awards,LEAF Awards,Blueprint Awards;荷兰Frame Awards;亚太室内设计大奖赛APIDA等国内外权威荣誉。
谢培河 ∣ Xie Peihe
AD艾克建筑设计创始人及总设计师2020、2021 Golden Trezzini Awards 评审2020 LOOP 设计奖评审谢培河怀抱强烈的情感张力和原创精神,主张以感性丰富驾驭理性简约,高妙且自然地融合空间功能与个性。在简单与复杂的动势中呈现空间美学,让人心与空间精神同振共鸣。凭借商业、住宅和办公领域的一系列极致空间作品,在过去几年内斩获了一系列国际知名奖项。其独具先锋性的“极简派艺术”空间设计语言,也已融贯东西方的认知并在全球业界得到极高的认可。现受邀成为2020、2021年俄罗斯金特列吉尼建筑与设计奖(2020、2021 Golden Trezzini Awards for Architecture and Design)的国际评审之一,该权威级奖项以“建筑即艺术”为箴言,评审席中包括Daniel Libeskind,Mario Botta,Toyo Ito,Ricardo Bofill等建筑名师。同时受2020年LOOP设计奖(LOOP Design Awards 2020)邀请,成为此初创奖项的首届评审之一。亦于2018年被香港Perspective透视杂志评选为“40位40岁以下优秀设计师”之一。