DesignRe-explore设计再探索「www.indesignadd.com 」
— — 全球创意生态的灵感引擎
隶属于英国伦敦DESIGNREEXPLORE传媒集团,创立于2021年,凭借独特的全球创意资源网络,
为设计师、地产家居专业人士及文化创意从业者提供每日前沿的行业洞察与灵感库藏。
平台通过整合千家国际合作伙伴资源,构建了横跨设计全产业链的权威内容矩阵。
核心品牌:
▸ HEPER创意黑皮书「www.heperdesign.com 」:全球创意灵感库,发掘前沿设计趋势与跨学科创新实践。
▸ iawards邸赛设计竞赛中心「www.indesignadd.com/Match/List」:推动行业未来的国际竞赛平台,聚焦设计新锐力量。
以"再探索"为基因,持续赋能设计生态的对话、碰撞与进化。

indesignaddcom@foxmail.com
https://weibo.com/u/2530221873
合作联系:136 6001 3049 / 奖项申报:159 8919 3049

浙江医药是全世界最大的天然和合成维生素E制造商之一。该建筑是公司成立以来第一个总部大楼,坐落于其位于绍兴滨海新城的新园区内。园区位置较为偏远,和外部城市设施、公共交通系统的联系有限。该总部大楼将容纳来自浙江医药及其多个分公司的行政和研发设施。
Zhejiang Medicine is one of the largest manufacturers for natural and synthetic vitamin E in the world. The building is the company’s first headquarters, within its new campus situated in the industrial district of Shaoxing. The campus is relatively isolated, with limited connectivity to exterior urban facilities and public transportation. The headquarters will house administration and research facilities from Zhejiang Medicine and its subsidiaries.

园区平面图 campus plan
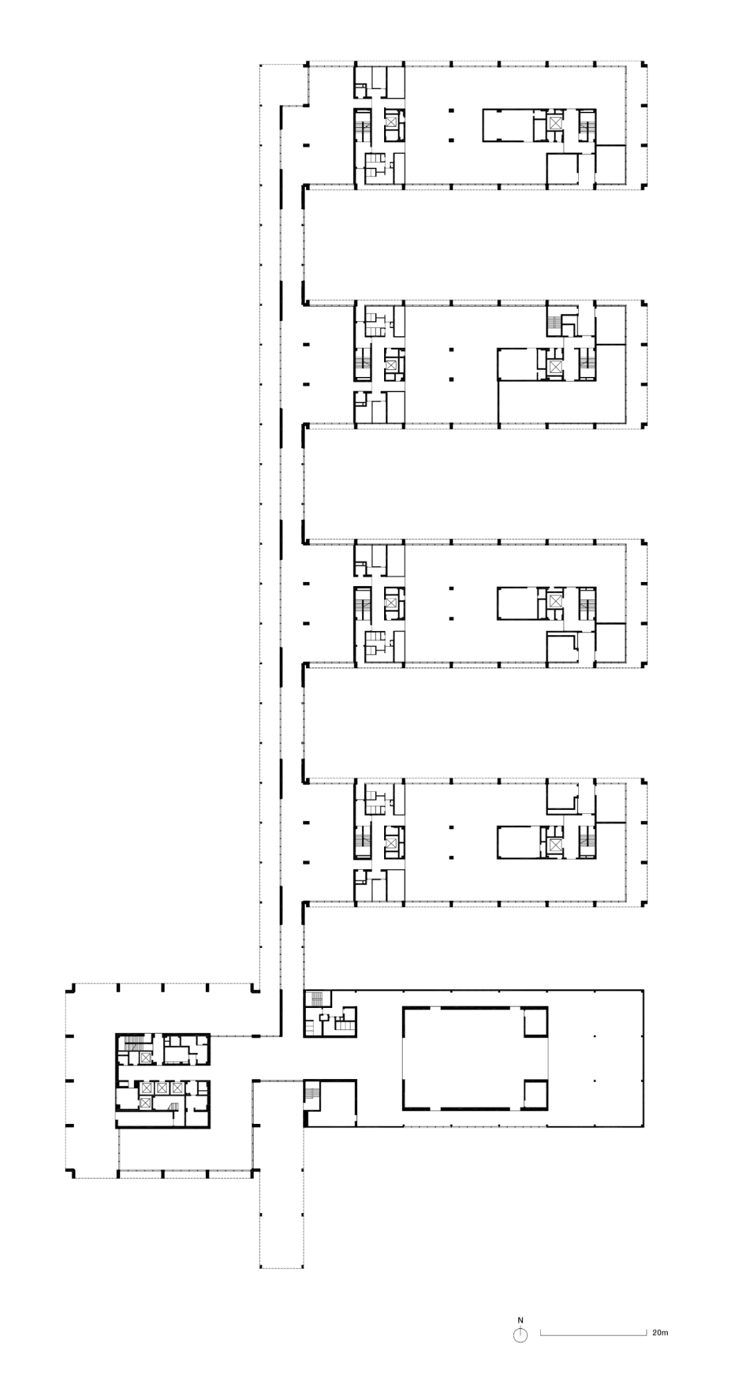
该项目的首要目标是为对功能有着不同需求的行政和研发人员创造相对独立的工作空间,同时又为员工和访客提供一个共享的公共空间。这个主要命题将复杂的功能分成一系列区块:一座高层办公楼,四座低层实验室,以及单层的展示和多功能厅。这种分隔因引入一个200米长的门廊而得到平衡,它贯穿整个基地,链接所有单体建筑。门廊被用作总部大楼和各个独立建筑的入口。它向西侧的公共公园敞开,创造了和景观的强有力联系。在室内,它向各个独立体量延伸,形成了门厅和休息区。这条门廊不仅扮演交通空间的角色,也将人们汇聚在一个公共的连续空间内,远眺室外的大公园。
The primary aim for the project is to create independent working spaces for administration and research staffs out of programmatic differentiation, but also to provide a collective public place for staffs and visitors. The principal proposition divides the extensive programme into a series of separate blocks: a tower of office, four low-rise buildings of laboratory, and a single-level exhibition and multi-function hall. The separation is balanced by introducing a 200-meter porch which runs through the entire site and connects all buildings. The porch functions as the entrance for the headquarters and each individual building. It opens towards the public park on west, to create strong link to landscape. Inside, it extends into each individual volume, to form the lobby and lounge area. The porch not only acts as circulation space but also gathers people within a public continuum overlooking the exterior park.

总平面图 site plan

首层平面图 ground floor plan








项目位置:中国绍兴
项目开始:2016
项目开工:2017
项目建成:2021
面积:60,600 m2
业主:浙江医药股份有限公司
建筑师:戴卫奇普菲尔德建筑事务所上海办公室负责合伙人:David Chipperfield、陈立缤、Mark Randel项目建筑师:Miguel Angel(概念设计与方案设计)、杜喆煦(初步设计至现场艺术监理)项目团队:Idries Karnachi、郭宇辰、何润丰、金訸嘉、李柏寰、李然、李维妙、王依臻、杨旭、朱柏憬、邹韵迪合作方
执行建筑师:浙江省天正设计工程有限公司
结构工程师:浙江省天正设计工程有限公司
机电工程师:浙江省天正设计工程有限公司
景观建筑师:Djao-Rakitine(概念设计)、浙江省天正设计工程有限公司(方案设计至施工监理)
灯光顾问:苏州金螳螂幕墙有限公司
摄影:田方方
Location: Shaoxing, China
Project start: 2016
Construction start: 2017
Completion: 2021
Gross floor area: 60,600 m2
Client: Zhejiang Medicine Co., Ltd
Architect: David Chipperfield Architects Shanghai
Partners: David Chipperfield, Mark Randel, Libin Chen
Project architects:Miguel Angel (Concept Design and Schematic Design), Zhexu Du (Design Sevelopment to Artistic Site Supervision)
Project team: Hejia Jin, Idries Karnachi, Pohuan Lee, Ran Li, Runfeng He, Sebastian Chu, Weimiao Li, Xu Yang, Yizhen Wang, Yuchen Guo, Yundi Zou
In collaboration with
Executive architect: Zhejiang Titan Design & Enginnering Co., Ltd
Structural engineer: Zhejiang Titan Design & Enginnering Co., Ltd
Service engineer: Zhejiang Titan Design & Enginnering Co., Ltd
Landscape architect:: Djao-Rakitine (Concept Design), Zhejiang Titan Design & Enginnering Co., Ltd (Schematic Design to Construction Supervision)
Lighting consultant: Suzhou Gold Mantis Curtain Wall Co., Ltd.
Photographer: Fangfang Tian