DesignRe-explore设计再探索「www.indesignadd.com 」
— — 全球创意生态的灵感引擎
隶属于英国伦敦DESIGNREEXPLORE传媒集团,创立于2021年,凭借独特的全球创意资源网络,
为设计师、地产家居专业人士及文化创意从业者提供每日前沿的行业洞察与灵感库藏。
平台通过整合千家国际合作伙伴资源,构建了横跨设计全产业链的权威内容矩阵。
核心品牌:
▸ HEPER创意黑皮书「www.heperdesign.com 」:全球创意灵感库,发掘前沿设计趋势与跨学科创新实践。
▸ iawards邸赛设计竞赛中心「www.indesignadd.com/Match/List」:推动行业未来的国际竞赛平台,聚焦设计新锐力量。
以"再探索"为基因,持续赋能设计生态的对话、碰撞与进化。

indesignaddcom@foxmail.com
https://weibo.com/u/2530221873
合作联系:136 6001 3049 / 奖项申报:159 8919 3049
英国内政部位于伦敦城市中心区马舍姆街,毗邻威斯敏斯特宫与泰晤士河,原址是三栋建于1960年代的环境部高楼。临近千禧年时,伦敦市民普遍意识到这组被戏称为“丑陋三姐妹”的塔楼,作为世界文化遗址威斯敏斯特宫的城市背景是极不协调的。Farrells将这项占地8公顷的内政部建设计划视为市中心稀有的城市可持续发展机会,将宏观的城市规划思维应用于此。此项目不仅是新建一处政府办公总部,更实现了在伦敦城市中心区恢复本地的城区特征、修复天际线,以及为社区注入新活力的城市更新愿景。

改建前 – 场地中耸立的环境部塔楼,被戏称为“丑陋三姐妹” ©Farrells

改建后 – 新建的内政部大楼通过缜密的设计提供了同等的空间容量 ©Farrells
"该场地应被视为一个城区,
享有各种多元的功能、混合的建筑样貌和不同大小的建筑规模,
这些特点恰是伦敦市中心区最精彩的特质。"
—— 特里·法雷尔爵士对该项目城市改进的总结

在相同面积容量下,降低建筑高度,并实现步行友好、渗透的内外街道 ©Farrells
拆除的环境部(左上图):
破坏威斯敏斯特宫天际线(世界文化遗产);
互不连通、面积很小的楼面;
不透气的整体裙房:不友好的人行道;
单一使用者的单体建筑:糟糕的邻里环境
新的内政部(右下图):
多种高度的低层建筑,与原建筑面积相同;
分隔灵活与多样、面积较大的楼面;
可达的,渗透的,景观化的公共空间;
混合功能的优质邻里环境:办公、商店和居住

维持原有建筑面积的同时,内政部的新方案将三栋高楼转变为三座互相连通的低层办公楼,办公场所的功能与效率远超之前的建筑群。三个居住街区完善了综合功能,带来140个市场价的和经济型的居住单元,以及商店、餐馆和市集摊位。通过将一个大街区打散并创造新的步行街道,场地与周围社区的联系得以加强,置入的商业空间则有助于培养起充满活力的街景。
为城市考虑的解决方案,
从“丑陋三姐妹“到“温和的巨人”

原环境部是在1960年代按照白厅建筑的规模建造的。接替它的是一项城市规划实践,将一位谦逊的"温和的巨人"总部大楼插入到附近混合功能的邻里中。 ©Farrells

原环境部塔楼破坏了议会大厦(威斯敏斯特宫)的标志性建筑剪影 ©Farrells
历史上此处是小街道与广场密布的城市格局。19世纪的煤碳厂将这里逐渐吞噬为一块巨大且功能单一的场地。1971年环境部总部在此落成,三座突兀的高楼将马舍姆街和蒙克街之间的联系切断,孤僻的战后建筑风格和死气沉沉的公共空间,优雅起伏的天际线变成了巨大的混凝土体量。环境部大楼被市民戏称为“丑陋三姐妹“,市民普遍认为这组塔楼与世界文化遗址威斯敏斯特宫极不协调。

Farrells曾长期参与改进环境部场地的城市规划研究。特里·法雷尔爵士于1991年开始制定马舍姆街总体规划纲要,并于1994年继续为环境部制定了更为详细的方案。在整个90年代中,Farrells的总体规划主张恢复该地区的历史城市格局,通过低层、独立的建筑组群取代尺度过大、厚重封闭的塔楼和裙房,重建失去的街道立面、公共空间以恢复街区活力。
城市设计总图:渗透的街道、新的广场和混合用途的居住,和谐融入临近建筑和街道的肌理。 ©Farrells
城市设计工作旨在将“温和的巨人”般的总部大楼低调地置入社区。©Farrells
2000年,Farrells在内政部举办的PFI竞标中胜出,交付方案提供与先前建筑同等的总建筑面积,并证明低层多功能混合的方案是可行的:既满足办公、住宅与商业的空间需求,也调和了威斯敏斯特的天际线。
最初更大范围的总体规划愿景,通过该场地的混合功能得以落实;随着时间推进,对规划方案的改进与建成的内政部项目,都达成与体现着最初的愿景。我们认识到原有建筑阻碍了公共流线,新方案强调创造一处具有包容性的市民社区和更宜人的公共空间,再加上高质量的建筑设计,实现可持续的城市更新。
“室内的城市设计”
3500人的综合用途工作社区

建筑内外的空间设计一脉相承。一条主要内街串联起其他支路,加上作为社区中心的主广场,这里最多可以容纳5000人。 ©Farrells
从最开始这个项目就受到各方的不同要求。对于内政部,推动新办公总部建造的原因是需确保其业务模式能够满足21世纪英国的新要求:对外具有开放的沟通渠道,内部多部门间互动良好。因此,需对新办公室进行重构,以改善内部和外部的交流方式,成为最有助于新业务模式的工作场所。对于当地社区,居民虽然迫切希望移除现有塔楼,但不能不计代价。威斯敏斯特区的日常生活需照常进行,尽可能减少噪音、灰尘和不便。同时,威斯敏斯特市政厅要求该项目提供住房、零售商业和社区空间。

纵剖面图 ©Farrells
交付方案提供了与先前结构近似的整体总建筑面积,三栋相互连接的低层建筑提供足以容纳3500名内政部员工的办公空间,其余是含有140套私人型和经济型公寓的三个住宅区、9家商店与3个市集摊位。
总体布局的原则是在这栋大型政府办公中设置多重公共空间,这些公共空间面向周围街道开放并彼此相连,以获得最佳的可达性,而非内向、昏暗的内庭。
室内规划设计:内街照片。每层楼都有特有的视觉特征将各部门加以串联,也鼓励内政部员工与其他部门的广泛交流。 ©Farrells
三个"口袋公园"为办公人员创造了额外的室外空间与视野。一条自然采光的内部"街道"贯穿三栋建筑,并提供共享的资源与活动——图书馆、静修室、咖啡区、打印店,以及连接口袋公园和接待处。这条中轴线组织起多种不同功能,成为办公人员通用的集会场所,有助于形成好的业务交流模式。

“街道”成为一处通用的集会场所 ©Farrells
明亮颜色与超尺度图形的使用,构建并加强了室内的色彩系统。每栋建筑享有一项独特的主题以方便人们确定方位,并强化这条室内"街道"作为整个办公空间的骨架。次级街道、中庭、玻璃连廊与主街道间的视觉互动,使外部和内部最大限度获得连接。

与街道相连的内庭院空间,色彩缤纷的内庭院提供了公寓住户们彼此交流的空间 ©Farrells
彩虹之街
艺术家合作的建筑外观

内政部新貌,自信而热情的新入口 ©Farrells
由于内政部的安保要求,建筑结构与外观肌理需经特别增强,以抵御恐怖袭击。从最初的概念构思开始,我们就引入外观的亮点并巧妙整合于设计中,避免建筑变成铜墙铁壁般的外观。在业主和开发商的共同促成下,我们发起并实施了一项非常创新的公共艺术策略,将艺术作品融入建筑外观肌理中。

彩虹之街 ©Farrells
设计的一大特征是通透的建筑在临街一侧呈现为欢迎公众光临的形象。Farrells和艺术家Liam Gillick合作,为轻质玻璃雨棚引入缤纷的色彩,为沿街立面赋予丰富的视觉趣味,也使得当地人将这条街道昵称为“彩虹之街”。彩色玻璃橱窗同样活跃了室内办公空间,并保护了室内区域和人员的隐私。虽然这项PFI(私人主动融资模式)项目有严格的预算和周期限制,Farrells仍然设法实现了一座美观和可持续的建筑作品。

©Farrells
政府项目PFI模式的成功案例
与英国绿色建筑优异认证
内政部项目背后是一份长达29年的私营主动融资(PFI)合同。PFI模式自1992年由英国政府发起,即由私营公司建造和运营公共基础设施。其核心理念是将政府项目的风险分配给最有能力处理这些风险的人。PFI项目严格的预算和工期限制,使私营承建商必须谨慎平衡合同的风险和回报,使设计过程富于挑战。Farrells的设计实践证明了在PFI过程的压力和严格的盈利限制下,仍有可能实现卓越的与可持续的政府公用建筑。

政府行政总部采取私营主动融资模式的成功案例 ©Farrells
鉴于英国政府在可持续设计方面的积极态度,从设计伊始,此项目就作为标杆式项目备受期待,并于建成后获得英国BREEAM绿色建筑认证中的“优异”评级,环境评级9/10。该评分基于能源性能、可持续性、建筑施工方法和管理以及建成环境对居民的吸引力。基于更广泛的社会环境,团队致力于实现比环境友好的单栋建筑更为宏观的可持续开发:最小化环境影响的同时满足经济预期,为住户、邻里和更大的地区带来广泛的社会效益。

可持续发展的关键点 ©Farrells
城市设计优先的政府办公总部
内政部项目按时按预算完成,为政府递交了一栋灵活、高效的行政办公总部,并培育出一个新的社区——与原有建筑完全不同。在这里,我们不仅关注建筑单体,而是整个区域的城市环境,着手恢复本地社区的特征,创造一个景观、建筑、人和活动和谐共存的整体。新的内政部融入了周边街区,将城市设计问题和建筑解决方案编织到伦敦的核心地区,呈现出强烈的场所感,最终形成特里•法雷尔爵士称之为“城区”的作品。
内政部被公认为一项模范项目,并荣获一系列奖项与可持续认证:
可持续建筑认证:
英国BREEAM绿色建筑认证 - 优异
(BREEAM – Excellence)
MIPIM大奖 最佳国际房地产项目的商务中心2006
伦敦区测量师协会 大型商业项目2006 - 推荐
英国皇家建筑师协会(RIBA)奖2005
混凝土学会 优异建筑项目证书2005
工业代理商协会/办公室代理协会 (物业周刊赞助) 最佳伦敦中部发展项目2005
领先欧洲建筑师论坛 最佳公共建筑奖2005 伦敦内政部

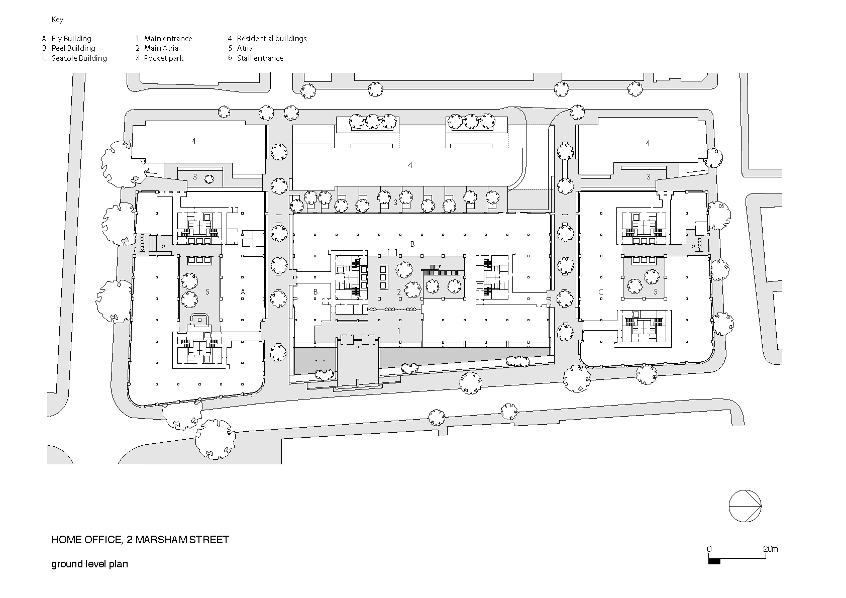
平面图 Plans ©Farrells
(本文由那小海协助Farrells编辑撰写)
项目信息
名称:英国内政部
地点:英国伦敦
业主:AGP & Bouygues
设计单位:Farrells法雷尔(前称TFP, Terry Farrell and Partners)
项目类型:规划;建筑设计
委托年份:1998
竣工年份:2005
规模:74,322m²
· 本文由 FARRELLS法雷尔 授权发布 ·
转载或引用请联系设计团队
未经许可 禁止以:DesignRe-explore设计再探索 编辑版本进行任何形式转载